CHRISTOPHER ANDREWS ARCHITECT & TOWN PLANNER

 

AN INTEGRATED SOCIAL AND ECOLOGICAL DESIGN PROCESS PART IX: 

DESIGN DEVELOPMENT & CONSTRUCTION DRAWINGS

 

Calistoga Residence South Elevation

 

Calistoga Residence Section Study

 

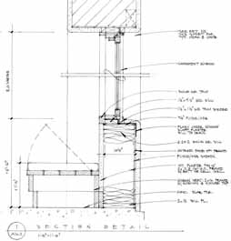
Calistoga Residence Window Seat Section

 

Following schematic design is the design development phase, where we refine the design drawings, with feedback from all the project stakeholders, including the structural engineer, contractors and building and planning officials. This leads into the preparation of construction and contract documents, which are utilized for accurate cost estimating, building layout and detailing, and are filed with the local building department for building permits. We utilize our experience working closely with contractors  to efficiently provide the drawings and information that is necessary for a successful construction process. Our ability to understand the cost implications of design decisions is key to the effectiveness of our practice. In an integrated design and construction process building starts with the initial vision and design continues until the last brick is laid. Using a whole systems design approach, the project team leverages its expertise to maximize the connections between environmental systems and address various project constraints simultaneously.

We utilize the design methods described within to systematically maximize the benefits of modern technology with the timeless principles of traditional environmental design. There's a wonderful old story about the renowned Bulgarian architect/builder Colio Fichtu, who built models of his buildings out of matchsticks and wax. He would know how much masonry and mortar he needed by how many matchsticks he has used, and how much wax he had used.

We believe, that by utilizing the methods described herein we can create buildings and environments that have this quality of durability, usefulness and beauty that we see in the best buildings of the past, the present, and hopefully the future.

We have dedicated ourselves as architects and builders to crafting beautiful buildings. By using low embodied energy materials and simple forms we design structures that are well integrated into their environments, comfortable, and easily adapted to change. While the final product is a building, we have found that our most successful projects come about as a result of our attention to these social and ecological processes that form and maintain families and communities. Our goal is to create environments that fulfill real human needs, while maintaining the ecological sustainability of the environment.

 

GO BACK TO PART IX: COMPUTER MODELS

 

GO BACK TO THE INTRODUCTION/TABLE OF CONTENTS

 

PROJECTS

SERVICES

PROCESS

CONTACT

INSPIRATION

 

HOME